Wawa Market Store | Ground-Up Commercial Construction
Status
Completed
Project Type
Commercial Retail Construction
Project Classification
Ground-Up Development

Project description
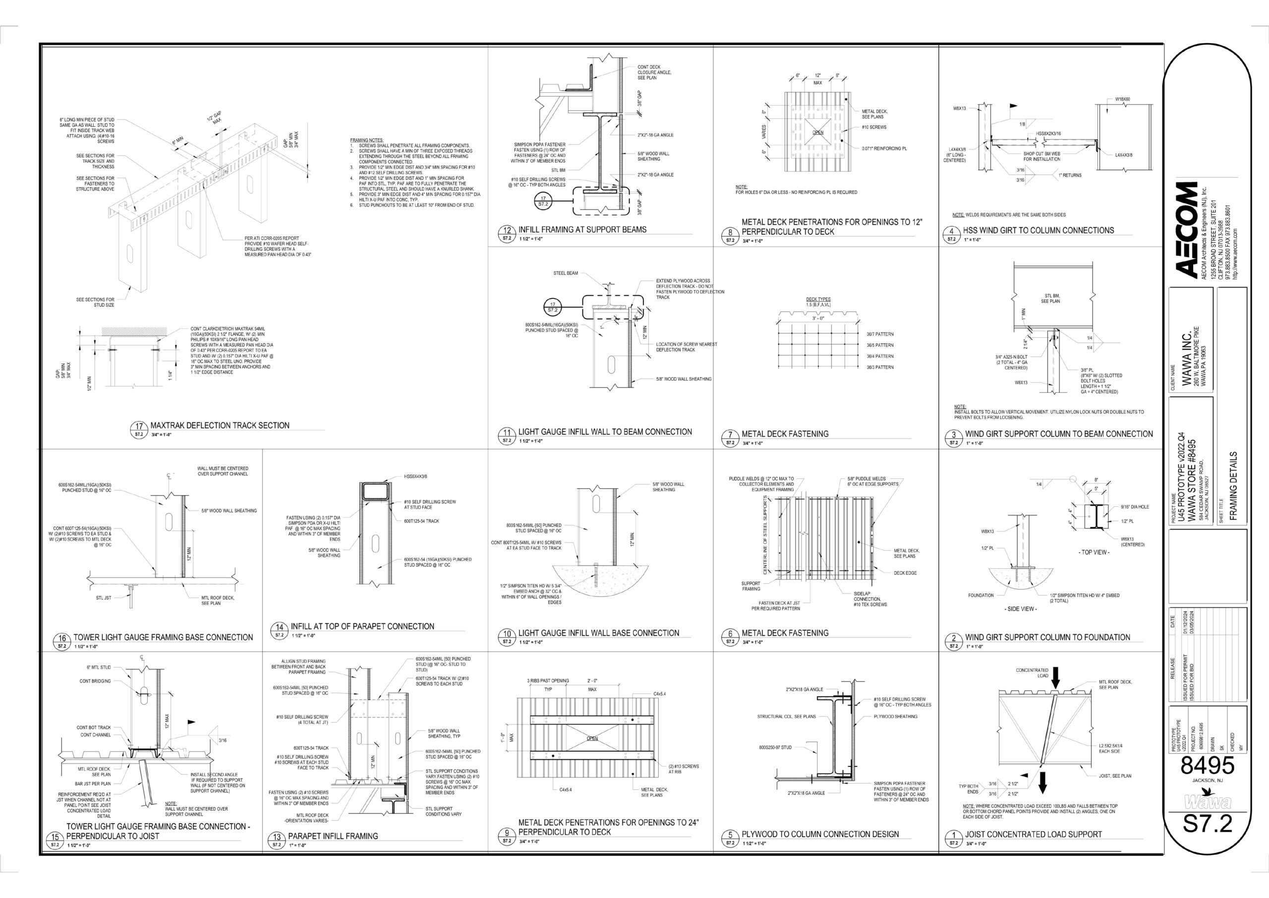
The Wawa Market Store #8495 project involved structural estimation and construction planning for a new commercial retail facility located in Jackson, New Jersey. The development followed the U45 prototype store design, commonly used for Wawa convenience store construction across multiple locations.
The scope included detailed analysis of structural drawings covering foundation systems, steel columns, beams, roof framing, and metal decking required to support the building structure. The project required precise takeoffs and quantity calculations to ensure accurate material estimates and construction planning.
Structural components included multiple steel beam types, column systems, roof trusses, and metal deck assemblies designed to support both the building envelope and rooftop mechanical equipment.
The project demonstrates DEKR’s expertise in commercial construction estimation for retail developments, ensuring contractors receive accurate quantity takeoffs and cost projections for structural work.
Key Details
- Location: 584 Cedar Swamp Road, Jackson NJ
- Project Type: Ground-Up Commercial Retail Construction
- Prototype Design: U45 Store Prototype (v2022.Q4)
- Primary Scope: Structural Steel, Roof Framing, and Metal Deck Estimation
- Trades Estimated: Steel Columns, Structural Beams, Roof Trusses, Metal Deck
Trades Covered in Estimate
Structural Steel
Takeoffs for steel columns, beams, and structural connections required for the building frame.
Roof Framing System
Analysis of roof framing layout including steel beams, trusses, and load-bearing members.
Metal Decking
Quantity estimation for metal deck installation supporting roof systems.
Structural Connections
Detailed review of beam-to-column connections, base plates, and anchor assemblies.
Foundation Layout
Structural analysis of foundation plan including column placements and load distribution.
Equipment Support Framing
Structural framing support designed for rooftop mechanical equipment installations.
Structural Details & Shop Drawings
Review and estimation of structural details required for construction execution.